I’m excited to share this elegant and stylish kitchen makeover. It’s an amazing transformation – what was once a more traditional, closed-off space is now bright, open, and modern. Below, you’ll see the full journey: the existing plan and before photo, the proposed drawings, the renderings that guided the design, and the stunning finished project.
It’s a wonderful example of how thoughtful design and expert craftsmanship can completely reimagine a home.
Before:
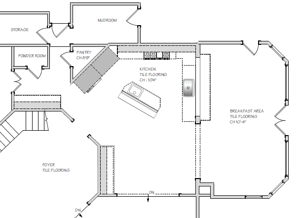
Existing Floor Plan:
For this project, we proposed four different design schemes to help our clients explore the possibilities. The drawings for two of those concepts are shown here, highlighting how the early design phase helps shape the final vision.
Then, during our design refinement stage, we created 3D drawings to help our clients visualize the space and make decisions on color selections and design details.
And then the finished “after” photos! We love how this kitchen came together — and what an amazing transformation it is.
If you’re thinking about remodeling your home, I’d be happy to help!
Reach out to me directly — I’d love to talk through your ideas and help you start exploring the possibilities.
Dave Vogt, Director of Project Development
[email protected] | 301.219.7626









